Search the MLS
Search by Neighborhood, Zip Code or MLS#
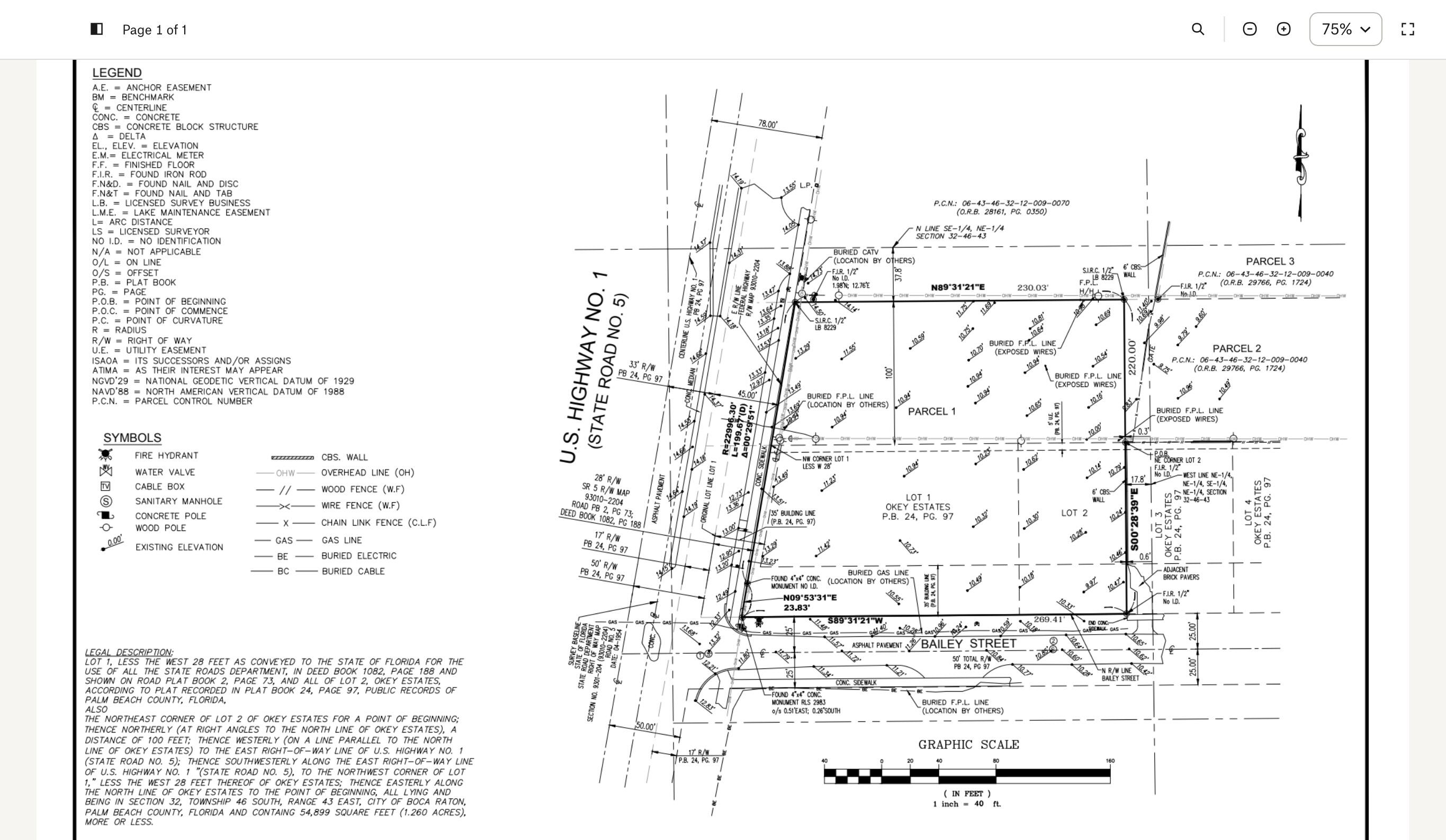
7900 N Federal HighwayBoca Raton, FL 33487
Due to the health concerns created by Coronavirus we are offering personal 1-1 online video walkthough tours where possible.




EXCEPTIONAL DEVELOPMENT OPPORTUNITY AWAITS WITH THIS RARE WATERFRONT PARCEL. CURRENTLY ZONED LOW-DENSITY RESIDENTIAL, THE PROPERTY OFFERS FLEXIBILITY FOR MEDIUM DENSITY HOWEVER, CITY APPROVAL IS REQUIRED. SOUTHEAST LOTS FEATURE UNOBSTRUCTED WATER VIEWS AND DIRECT DOCK ACCESS, CREATING AN IDEAL SETTING FOR LUXURY WATERFRONT LIVING.
| 2 months ago | Status changed to Active Under Contract | |
| 2 months ago | Listing updated with changes from the MLS® | |
| 4 months ago | Listing first seen on site |
All listings featuring the BMLS logo are provided by BeachesMLS, Inc. This information is not verified for authenticity or accuracy and is not guaranteed. Copyright © 2026 BeachesMLS, Inc. (a Flex MLS feed)
Last checked: 2026-02-23 11:45 PM UTC



Did you know? You can invite friends and family to your search. They can join your search, rate and discuss listings with you.